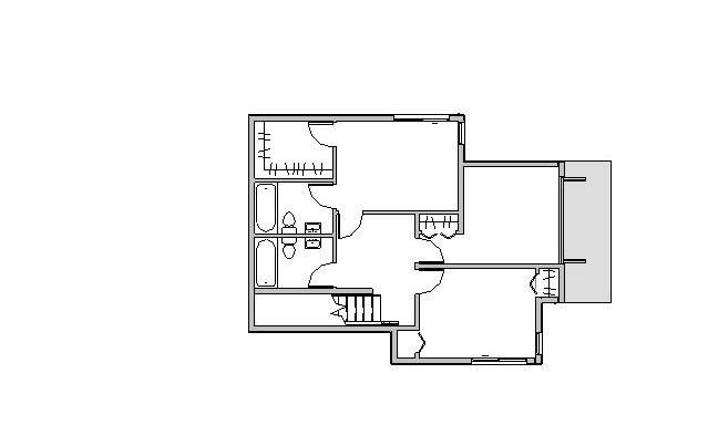
High above the city streets of Los Angeles, where the hills tilt toward the horizon and sunlight dances across steep slopes, the Barrett Residence rises as an elegant response to a challenging site. This three-bedroom, two-bathroom home, complete with a two-car garage and a self-contained accessory dwelling unit, occupies a lot designated both as a steep slope and a high fire hazard zone. Instead of resisting these constraints, the design embraces them—turning limitations into opportunities for beauty and efficiency.
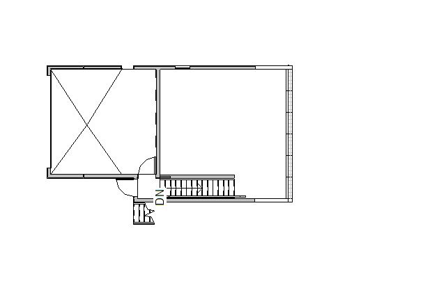
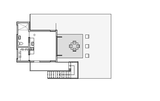
The home unfolds across four terraced levels, each one carefully tuned to the land beneath it. Bedrooms rest on the lower level, cocooned from street noise and wrapped in a sense of calm. Above, open living spaces welcome daylight and sweeping views, creating a fluid connection between interior comfort and the drama of the surrounding hillside. The ADU crowns the garage, positioned for maximum privacy and autonomy, ideal for guests, extended family, or rental use.
With its minimal earthwork and sensitive siting, the Barrett Residence is more than a home—it’s a quiet conversation between architecture and landscape. Every line, every level, is an acknowledgment that design is not just about building on the land, but building with it.









