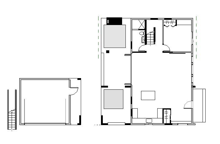
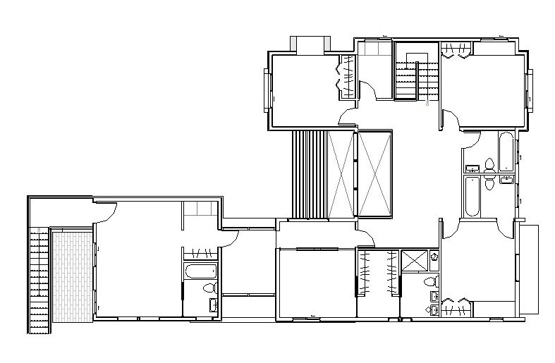
In a quiet Los Angeles neighborhood, the Hasty Residence transforms a modest three-bedroom, one-bathroom home into a contemporary six-bedroom, five-bathroom sanctuary. Rather than demolish and start anew, the design embraces the original structure—building entirely around the existing house and garage. This choice not only preserved the home’s history but also gave rise to a distinctive architectural character, where the old and new intertwine in unexpected ways.
The expanded design introduces generous volumes and light-filled spaces. A dramatic two-story living area opens to the sky through expansive skylights, while balconies, terraces, and sliding glass doors dissolve the boundaries between indoors and out. The home’s shape, molded by the footprint of the original, creates unique interior geometries and intimate outdoor pockets for gathering.
Responding to modern living patterns, each bedroom includes not only a private closet but also a dedicated workspace—reflecting the growing importance of remote work, study, and personal technology. The result is a residence that honors its origins while fully embracing the needs and rhythms of contemporary life.









